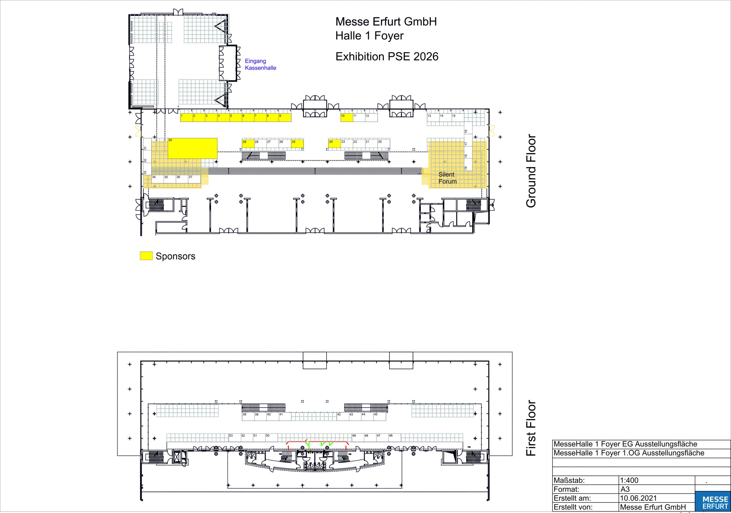
20th International Conference on Plasma Surface Engineering

AUGUST 31 – SEPTEMBER 3, 2026
TRADE FAIR ERFURT / CONGRESS CENTER
ERFURT, GERMANY

How to Exhibit

The exhibition is located in Foyer Hall 1.